Omschrijving
ZEER RUIME MAISONNETTE MET HEERLIJK GROOT DAKTERRAS EN DRIE ROYALE SLAAPKAMERS, GELEGEN IN HET HART VAN IJMUIDEN, NABIJ DUINEN EN STRAND!
Deze zeer royale 4-kamermaisonnette met eigen entree en berging op de begane grond biedt het comfort van een huis met de gemakken van een appartement en een actieve, goed functionerende VvE met lage maandlasten. De woning beslaat drie verdiepingen en is volledig voorzien van een nette laminaatvloer. De lichte, ruime woonkamer heeft toegang tot een balkon aan de voorzijde, een fijne plek voor je eerste kop koffie in de zon.
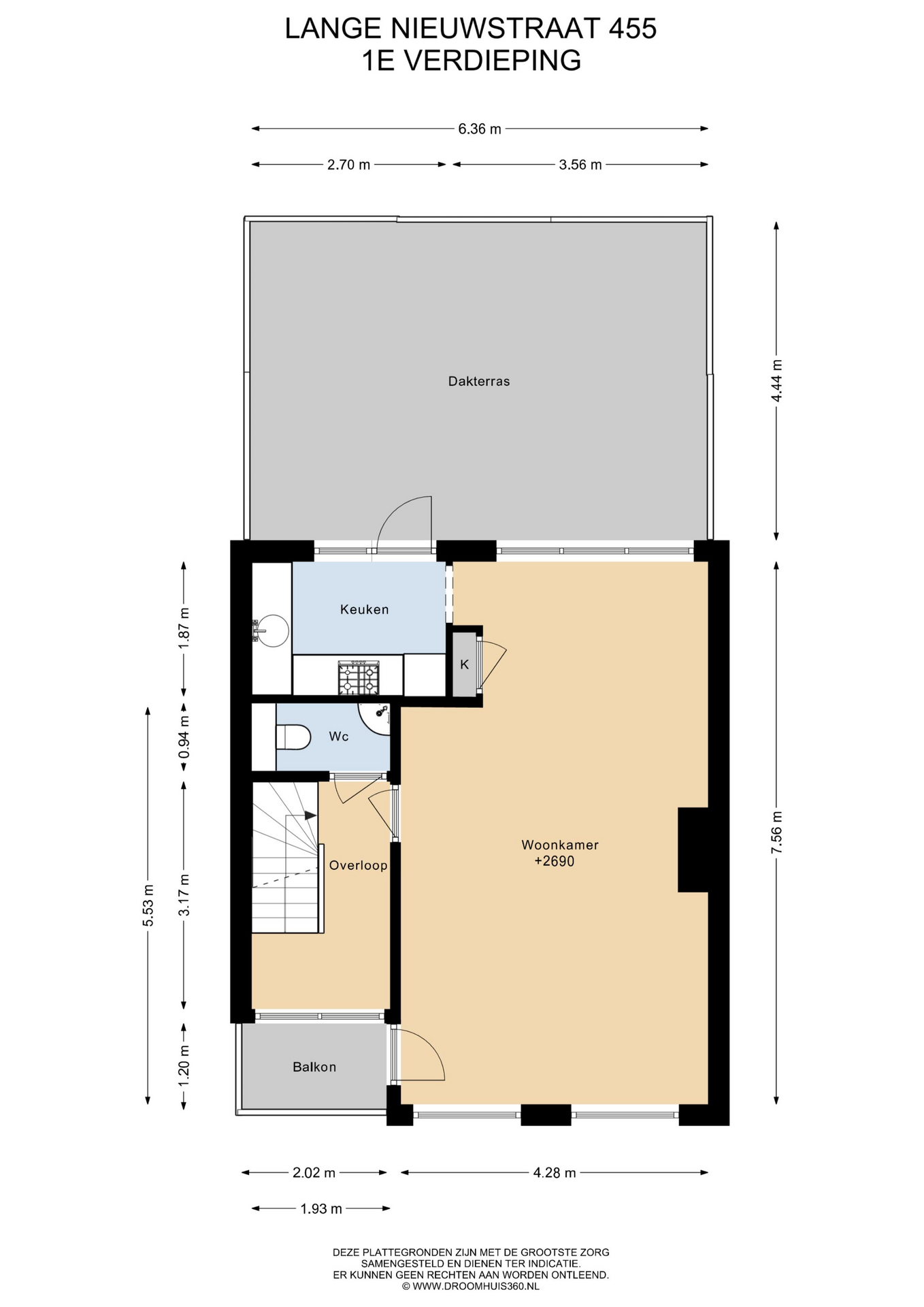
De open keuken is voorzien van diverse inbouwapparatuur en biedt directe toegang tot een ruim dakterras van maar liefst circa 27 m², waar je heerlijk kunt ontspannen of gezellig buiten eten.
Op de tweede verdieping bevinden zich twee royale slaapkamers (waarvan één met eigen balkon), een praktische wasruimte en een nette badkamer. De derde verdieping biedt nog een derde royale slaapkamer, ideaal als master bedroom, werk- of hobbyruimte.
In 2021 zijn overal kunststof kozijnen met horren geplaatst, waardoor het onderhoud minimaal is. De ligging is perfect: in het centrum van IJmuiden, met winkels, scholen en voorzieningen direct om de hoek, en toch op korte afstand van het strand en duingebied voor wie van rust en natuur houdt.
De ligging is ideaal met alle gemakken van het centrum van Ijmuiden in de buurt maar met tevens de mogelijkheid de natuur op te zoeken in het duingebieden en zee, kortom een heerlijke plek waar stad en natuur samenkomen.
Bouwjaar: ca. 1957
Inhoud: ca. 397 m3
Gebruiksopp. woonfunctie: ca. 107 m2
Gebruiksopp. gebouw gebonden buitenruimte: ca. 33 m2
Gebruiksopp. externe bergruimte: ca. 6 m2
Indeling:
Begane grond:
Entree. Hal met meterkast en trapopgang.
1e Verdieping:
overloop, zwevend toilet met fonteintje, ruime, lichte woonkamer met laminaatvloer, vaste kast, deur
naar het balkon op het zuiden en een deur naar het ruime dakterras gelegen op het noorden, keurige half open
keuken voorzien van diverse inbouwapparatuur (o.a. vaatwasser (2021), afzuigkap, magnetron, oven,
gaskookplaat, koelkast (2021) en vriezer)
2e Verdieping:
overloop, twee royale slaapkamers met vaste kasten waarvan één toegang biedt tot het balkon aan de voorzijde, nette
badkamer met 2e toilet, douche(cabine), ligbad, designradiator, mechanische ventilatie en
wastafel(meubel), aparte wasruimte met wasmachine,- en drogeraansluiting
3e Verdieping:
royale slaapkamer met Velux dakraam, opstelling C.V.-combiketel en bergruimte achter de
knieschotten
Bijzonderheden:
– Aanvaarding in overleg, kan snel
– De servicekosten bedragen € 50,- per maand;
– Volledig voorzien van kunststof kozijnen en horren;
– De trappen zijn opnieuw bekleed met een geluidsisolerende onderlaag in 2021;
– Royaal dakterras (27 m2) op het noorden;
– Eigen berging in de onderbouw;
– Uitstekende busverbindingen naar Haarlem en Amsterdam;
– Glasvezel aanwezig;
– Ideaal gelegen ten opzichte van het centrum van IJmuiden en het duingebied. Tevens zijn
meerdere basisscholen en het openbaar vervoer op loopafstand te bereiken.
Interesse in dit appartement? Schakel direct uw eigen NVM-aankoopmakelaar in. Uw NVM-aankoopmakelaar komt op voor úw belang en bespaart u tijd, geld en zorgen. Adressen van collega NVM-aankoopmakelaars vindt u op Funda.
Kenmerken
- Koopprijs € 385.000,- kosten koper
- Status Beschikbaar
- Bouwjaar 1957
- Aanvaarding In overleg
- Servicekosten € 0,-
- Soort bouw Bestaande bouw
- Bouwjaar 1957
- Parkeerfaciliteiten Betaald parkeren
- Schuur / berging Inpandig
- Aantal schuren / bergingen 1
- Energielabel C
- Isolatie Dakisolatie, dubbel glas
- Verwarming Cv ketel
- Warm water Cv ketel
- C.V.-ketel type Gas
- C.V.-ketel bouwjaar 2014
- Energie einddatum 2032-02-25
- Voorzieningen Mechanische ventilatie, tv kabel, dakraam, glasvezel kabel, natuurlijke ventilatie
- Onderhoud binnen Goed
- Onderhoud buiten Goed
- Permanente bewoning Ja
- Huidig gebruik Woonruimte

Een kindvriendelijke buurt in een zeer gewilde wijk.
Een prachtige woning voor een middelgroot gezin.
Woning in beeld
Plattegronden
De makelaar voor jouw woongeluk
Als u uw huis gaat verkopen dan wilt u toch de absolute zekerheid dat u een makelaar heeft die zich met hart en ziel voor u inzet? Een makelaar die uw wijk en de regio kent als geen ander? Van Gulik Makelaars Beverwijk doet dit al 40 jaar met resultaat!