Omschrijving
Vrijstaand wonen in de mooiste wijk van Beverwijk
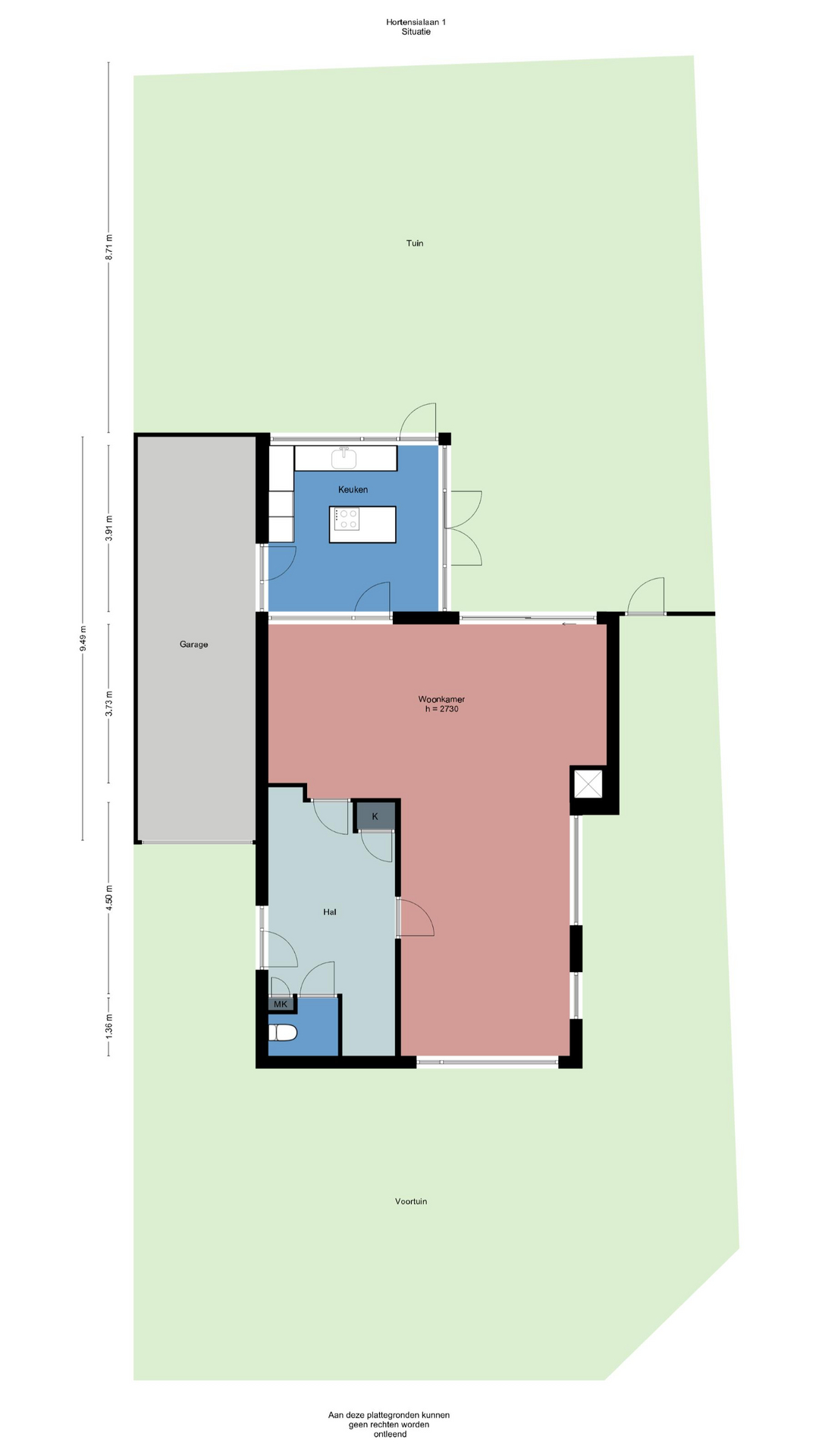
Op een prachtige locatie, in één van de meest geliefde wijken van Beverwijk, staat deze royale vrijstaande woning met garage en ruime zonnige tuin. Hier woont u in alle rust, met de duinen en het strand op korte afstand, en toch met alle voorzieningen binnen handbereik. De woning, gebouwd in 1971, beschikt over maar liefst 191 m² woonoppervlakte. De royale woonkamer met open haard en de grote keuken bieden volop leefruimte. Op de eerste verdieping vindt u vier slaapkamers en een ruime badkamer. Daarboven is er nog een grote zolder met een extra slaapkamer, ideaal als werk-, hobby- of logeerruimte. De woning beschikt over een grote, diepe garage die deels in gebruik is als bijkeuken, en daarnaast is er een eigen oprit waar u gemakkelijk twee auto’s kunt parkeren. Rondom de woning ligt een fijne tuin met veel ruimte en privacy. Hoewel de woning gedateerd is, biedt dit juist de uitgelezen kans om het volledig naar uw eigen smaak te moderniseren. Met de ruimte, de indeling en de ligging als solide basis, kunt u hier een droomhuis realiseren dat volledig past bij uw wensen.
De omgeving is groen, ruim en rustig, maar toch centraal. U woont hier op korte afstand van scholen, winkels, sportfaciliteiten én natuurlijk de duinen en het strand.
Kortom: een royale vrijstaande woning met garage, tuin rondom en volop potentie, een unieke kans in de mooiste wijk van Beverwijk!
Bouwjaar: 1971
Woonoppervlakte: ca. 191 m2
Gebouw gebonden buitenruimte: ca. 26 m2
Perceel oppervlakte: 415 m2
Inhoud: ca. 737 m3
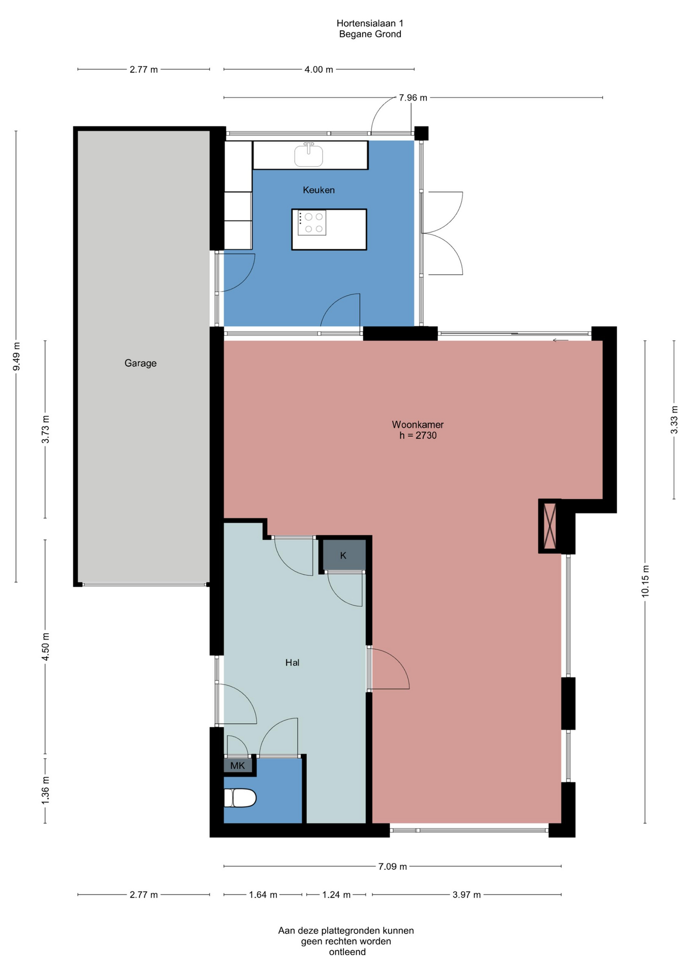
Indeling
Begane grond:
ruime hal met toegang tot de woonkamer en trapopgang, meterkast, toilet (staand) met fonteintje, royale woonkamer met veel lichtinval en een gezellige open haard, grote keuken met uitzicht op de tuin en openslaande deuren naar de achtertuin, toegang tot de garage/bijkeuken, grote zonnige tuin op het oosten gelegen
1e Verdieping;
overloop, vier ruim bemeten slaapkamers, royale nette badkamer met ligbad, douche, wastafel en wasmachine aansluiting, separaat toilet met fonteintje
2e Verdieping:
via vaste trap bereikbare overloop, opstelling c.v.-ketel en bergruimte achter knieschotten, 5e royale slaapkamer met veel natuurlijk licht en veel bergruimte
Bijzonderheden
– aanvaarding in overleg;
– maar liefst 5 slaapkamers;
– ruime garage;
– groene omgeving;
– strand, zee en duinen op ca. 10 minuten fietsen;
– royale zonnige achtertuin met veel privacy;
– sportverenigingen en scholen om de hoek;
– energielabel D
Interesse in dit huis? Schakel direct uw eigen NVM-aankoopmakelaar in. Uw NVM-aankoopmakelaar komt op voor úw belang en bespaart u tijd, geld en zorgen. Adressen van collega NVM-aankoopmakelaars vindt u op Funda.
Kenmerken
- Koopprijs € 825.000,- kosten koper
- Status Beschikbaar
- Bouwjaar 1971
- Aanvaarding In overleg
- Servicekosten € 0,-
- Soort bouw Bestaande bouw
- Bouwjaar 1971
- Perceeloppervlakte ca. 415 m2
- Hoofdtuin Achtertuin
- Oppervlakte hoofdtuin 163 m2
- Ligging hoofdtuin Oost
- Kwaliteit tuin Verzorgd
- Parkeerfaciliteiten Op eigen terrein
- Energielabel D
- Isolatie Dakisolatie, gedeeltelijk dubbel glas
- Verwarming Cv ketel
- Warm water Cv ketel
- C.V.-ketel type Gas
- C.V.-ketel bouwjaar 2020
- Energie einddatum 2035-10-02
- Voorzieningen Tv kabel
- Onderhoud binnen Redelijk
- Onderhoud buiten Goed
- Bijzonderheden Kluswoning
- Permanente bewoning Ja
- Huidig gebruik Woonruimte

Een kindvriendelijke buurt in een zeer gewilde wijk.
Een prachtige woning voor een middelgroot gezin.
Woning in beeld
Plattegronden
De makelaar voor jouw woongeluk
Als u uw huis gaat verkopen dan wilt u toch de absolute zekerheid dat u een makelaar heeft die zich met hart en ziel voor u inzet? Een makelaar die uw wijk en de regio kent als geen ander? Van Gulik Makelaars Beverwijk doet dit al 40 jaar met resultaat!