Omschrijving
Duurzame maar vooral sfeervolle bovenwoning met zonnig dakterras in hartje Beverwijk
Op zoek naar een instapklare woning met karakter én comfort? Dan is deze ruime bovenwoning aan de Baanstraat precies wat u zoekt! Met een royale woonkamer, een moderne keuken, drie slaapkamers en een heerlijk zonnig dakterras biedt deze woning alles wat u nodig heeft, ideaal voor starters én jonge gezinnen.
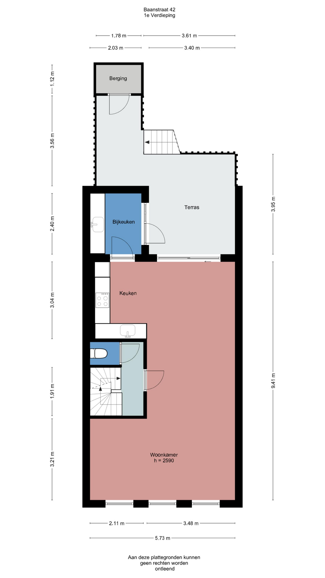
Op de eerste verdieping vindt u de lichte en ruime woonkamer. Het sfeervolle balkenplafond, de vloerverwarming en de strakke afwerking geven de ruimte een warme en uitnodigende uitstraling. Via de vernieuwde schuifpui bereikt u het zonnige dakterras, een ideale plek om te ontspannen of gezellig te tafelen.
De moderne open keuken beschikt over alle gewenste inbouwapparatuur en heeft een handige bijkeuken. Zowel vanuit de keuken als vanuit de woonkamer heeft u toegang tot het terras. Op deze verdieping bevindt zich ook een toilet.
Op de tweede verdieping liggen drie slaapkamers en een eigentijdse badkamer, die zowel vanuit de royale hoofdslaapkamer als vanaf de overloop bereikbaar is. De plafonds op deze verdieping zijn glad gestukt, wat zorgt voor een frisse en moderne uitstraling. De woning ligt op een ideale plek: midden in Beverwijk, met winkels, horeca en voorzieningen om de hoek, het NS station van Beverwijk is op loopafstand. Bovendien bent u binnen korte tijd bij het strand van Wijk aan Zee of in de natuurgebieden in de omgeving. Ook openbaar vervoer en uitvalswegen zijn uitstekend bereikbaar.
Kortom: een woning die sfeer, comfort en een geweldige ligging perfect combineert. Maak snel een afspraak voor een bezichtiging en ervaar zelf het woonplezier van deze bovenwoning aan de Baanstraat!
Bouwjaar: ca. 1981
Inhoud: ca. 365 m3
Woonoppervlakte: ca. 111 m2
Gebouw gebonden buitenruimte: ca. 21 m2
Indeling:
Begane grond:
Entree, meterkast (in de hal), garderobe, trap naar 1e verdieping, schuur, brandtrap naar 1e verdieping (dakterras)
1e verdieping:
overloop, zwevend toilet met fonteitje, woonkamer met vloerverwarming, moderne open keuken voorzien van diverse inbouwapparatuur (o.a. vaatwaser,
2e Verdieping:
overloop, kast met ruimte voor wasmachine en droger, kast met c.v.-ketel, 3 slaapkamers, moderne badkamer met inloopdouche, wastafel met meubel en zwevend toilet
Bijzonderheden:
– aanvaarding in overleg;
– centrale ligging in Beverwijk, winkels op loopafstand
– dicht bij het strand van Wijk aan Zee
– ruime en lichte woonkamer met vloerverwarming
– energielabel A;
– authentiek balkenplafond en strakke wandafwerking
– moderne open keuken met bijkeuken
– drie slaapkamers en een moderne badkamer
– zonnig dakterras bereikbaar via woonkamer én keuken
– VvE is in oprichting
– servicekosten € 70,- per maand
Interesse in deze woning? Schakel direct uw eigen NVM-aankoopmakelaar in. Uw NVM-aankoopmakelaar komt op voor úw belang en bespaart u tijd, geld en zorgen. Adressen van collega NVM-aankoopmakelaars vindt u op Funda.
Kenmerken
- Koopprijs € 425.000,- kosten koper
- Status Beschikbaar
- Bouwjaar 1981
- Aanvaarding In overleg
- Servicekosten € 0,-
- Soort bouw Bestaande bouw
- Bouwjaar 1981
- Energielabel A
- Isolatie Dakisolatie, muurisolatie, hr glas
- Verwarming Cv ketel, vloerverwarming gedeeltelijk
- Warm water Cv ketel
- C.V.-ketel type Gas
- C.V.-ketel bouwjaar 2019
- Energie einddatum 2035-08-28
- Voorzieningen Tv kabel, schuifpui, natuurlijke ventilatie
- Onderhoud binnen Goed tot uitstekend
- Onderhoud buiten Goed tot uitstekend
- Bijzonderheden Gestoffeerd
- Permanente bewoning Ja
- Huidig gebruik Woonruimte

Een kindvriendelijke buurt in een zeer gewilde wijk.
Een prachtige woning voor een middelgroot gezin.
Woning in beeld
Plattegronden
De makelaar voor jouw woongeluk
Als u uw huis gaat verkopen dan wilt u toch de absolute zekerheid dat u een makelaar heeft die zich met hart en ziel voor u inzet? Een makelaar die uw wijk en de regio kent als geen ander? Van Gulik Makelaars Beverwijk doet dit al 40 jaar met resultaat!