Omschrijving
Deze charmante bovenwoning is de perfecte kans voor starters!
De bovenwoning beschikt over alles wat u nodig heeft maar verdient wel wat aandacht en liefde. Het afgelopen twee jaar is er al veel gedaan aan renovatie, zo zijn het dak en de meeste kozijnen vervangen. De erker aan de voorzijde zorgt voor veel lichtinval, hierdoor komt de sfeervolle woonkamer echt tot leven. De open keuken die in een hoekopstelling is ingericht is de ideale plaats voor kookliefhebbers. De badkamer is modern afgewerkt met een inloopdouche en een nette wastafel. Het zonnige dakterras kan een opknapbeurt gebruiken, maar dan kunt u ook heerlijk ontspannen en genieten van de buitenlucht.
De bovenwoning ligt op loopafstand van de Breestraat en het winkelcentrum Beverhof. Verder is het NS-station op loopafstand en is het appartement gunstig gelegen ten opzichte van diverse uitvalswegen naar Alkmaar, Amsterdam en Haarlem. En niet te vergeten het strand en de duinen. Binnen 15 minuten zit je op het strand in Wijk aan Zee.
Kortom: Deze woning combineert comfort en een gunstige ligging in het gezellige Beverwijk. Een ideale plek voor starters die gelijkvloers willen wonen.
Interesse? Neem vandaag nog contact op voor een bezichtiging en laat u verrassen door deze complete woning!
Bouwjaar: 1922
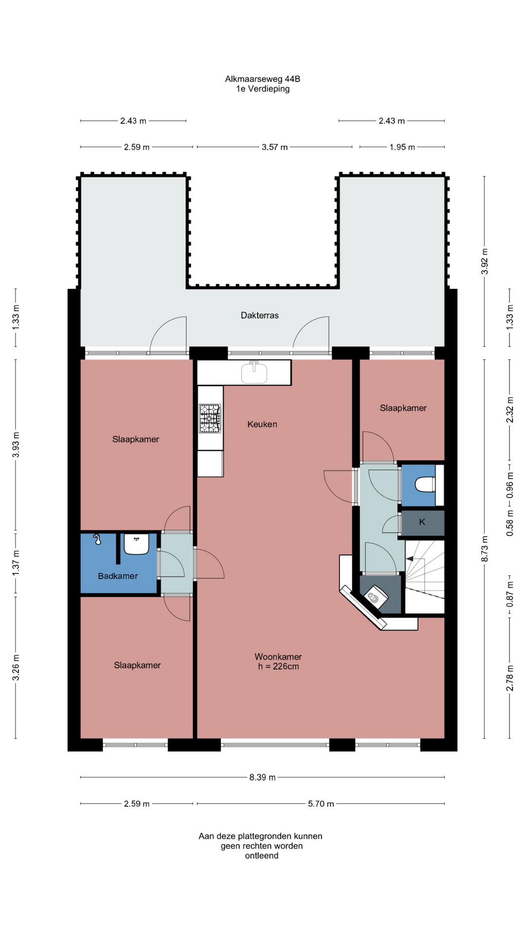
Woonoppervlak: ca. 77 m2
Gebouw gebonden buitenruimte: 24 m2
Inhoud: ca. 222 m3
Indeling:
Begane grond:
Entree, meterkast, trap naar de verdieping.
1e Verdieping:
hal, toiletruimte met zwevend toilet, bijkeuken met wasmachineaansluiting en ruimte voor droger, woonkamer met erker, open keuken voorzien van hardstenen blad diverse inbouwapparatuur (o.a. 4-pits gasfornuis, koelkast, combi-oven, vaatwasser), twee slaapkamers waarvan één toegang heeft tot het dakterras, moderne badkamer voorzien van een inloopdouche en een wastafel.
Bijzonderheden:
– aanvaarding in overleg;
– servicekosten € 62,00 per maand;
– winkels op loopafstand;
– c.v. ketel, ATAG (2021);
– energielabel B;
– het dak is in november 2023 geïsoleerd;
– ideale verbinding met Amsterdam, Haarlem en Alkmaar met zowel openbaar vervoer als de auto.
Interesse in dit huis? Schakel direct uw eigen NVM-aankoopmakelaar in. Uw NVM-aankoopmakelaar komt op voor úw belang en bespaart u tijd, geld en zorgen. Adressen van collega NVM-aankoopmakelaars vindt u op Funda.
Kenmerken
- Koopprijs € 265.000,- kosten koper
- Status Beschikbaar
- Bouwjaar 1922
- Aanvaarding In overleg
- Servicekosten € 0,-
- Soort bouw Bestaande bouw
- Bouwjaar 1922
- Parkeerfaciliteiten Openbaar parkeren
- Energielabel B
- Isolatie Dubbel glas, volledig geisoleerd, hr glas
- Verwarming Cv ketel, open haard
- Warm water Cv ketel
- C.V.-ketel type Gas
- C.V.-ketel bouwjaar 2021
- Energie einddatum 2035-06-27
- Voorzieningen Mechanische ventilatie, tv kabel, natuurlijke ventilatie
- Onderhoud binnen Redelijk tot goed
- Onderhoud buiten Redelijk tot goed
- Permanente bewoning Ja
- Huidig gebruik Woonruimte

Een kindvriendelijke buurt in een zeer gewilde wijk.
Een prachtige woning voor een middelgroot gezin.
Woning in beeld
Plattegronden
De makelaar voor jouw woongeluk
Als u uw huis gaat verkopen dan wilt u toch de absolute zekerheid dat u een makelaar heeft die zich met hart en ziel voor u inzet? Een makelaar die uw wijk en de regio kent als geen ander? Van Gulik Makelaars Beverwijk doet dit al 40 jaar met resultaat!