Verkocht o.v.

1951 cg Velsen-noord

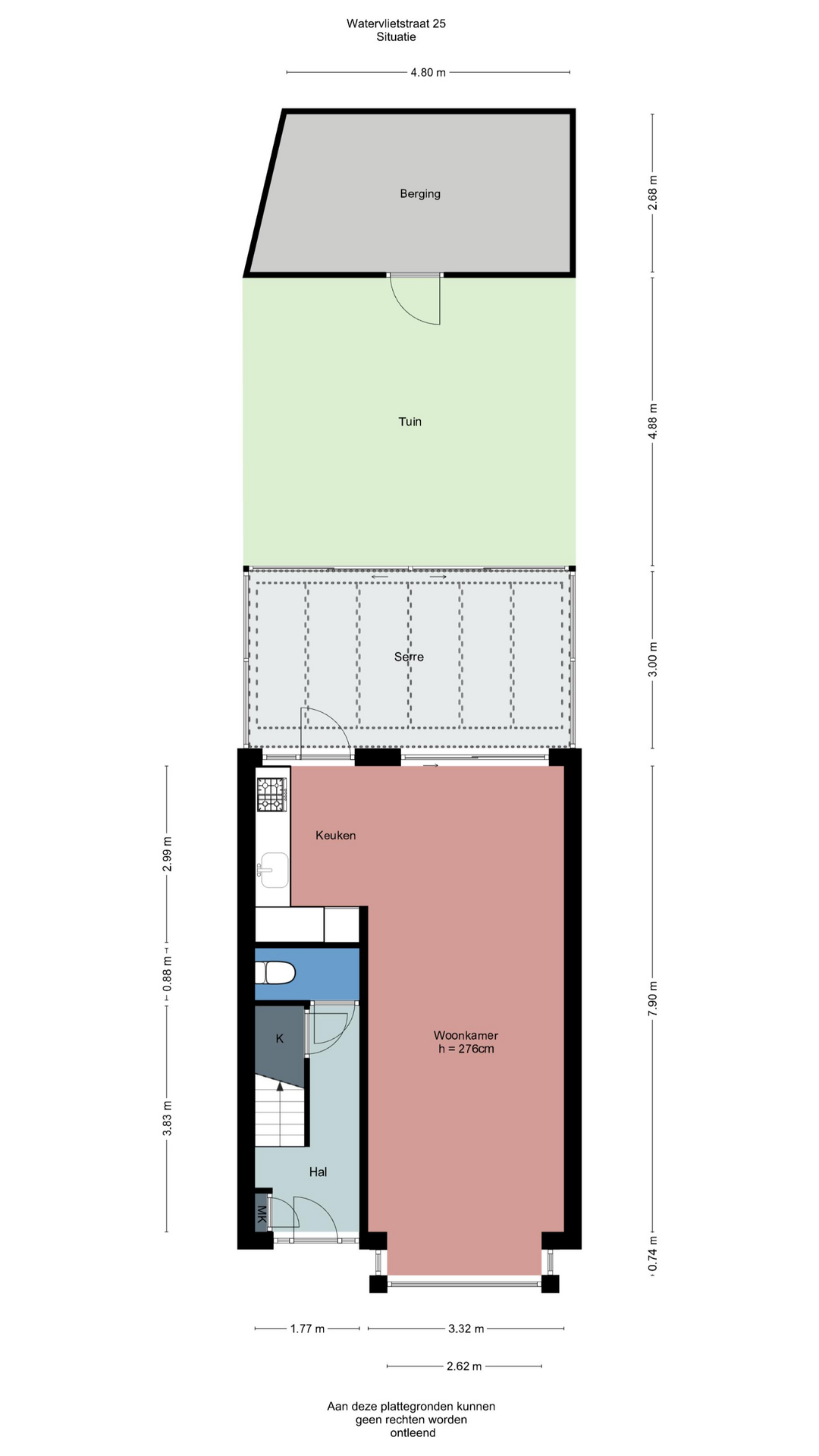
Watervlietstraat 25

€ 369.000 k.k.

Reageer Direct
  • 101m²
  • 111m²
  • 5
  • E

Omschrijving

Sfeervolle jaren ’30 hoekwoning met serre en 4 slaapkamers
In een gezellige en karakteristieke wijk vol fraaie jaren ’30 woningen, staat aan de Watervlietstraat deze charmante hoekwoning te koop. Een huis met sfeer, ruimte én verrassend veel licht, precies wat je zoekt als je houdt van de uitstraling van toen, gecombineerd met het comfort van nu.
Dankzij de erker aan de voorzijde en de schuifpui naar de serre geniet je hier van veel natuurlijk licht. De aluminium serre met verlichting is afsluitbaar, waardoor je het hele jaar door een verlengstuk van de woonkamer hebt. ’s Zomers zet je alles open en zit je heerlijk ‘buiten binnen’, ’s winters is het een knusse plek om te ontspannen.
De open keuken is praktisch ingedeeld en netjes onderhouden. Niet gloednieuw, maar nog geen tien jaar oud en voorzien van de nodige inbouwapparatuur, helemaal klaar voor dagelijks gebruik.
Op de eerste verdieping bevinden zich drie goed bemeten slaapkamers en een moderne badkamer met eigentijdse afwerking. De tweede verdieping biedt nog een vierde slaapkamer, ideaal als werkkamer, hobbyruimte of tienerkamer.
Buiten is het genieten in de achtertuin met achterom. De ruime, vernieuwde schuur biedt volop plek voor fietsen, gereedschap of hobby’s. Kortom: een heerlijke hoekwoning met karakter, licht en leefruimte in een geliefde buurt met een sterke jaren ’30 uitstraling.

Bouwjaar: ca. 1935
Inhoud: ca. 322 m3
Woonoppervlakte: ca. 107 m2
Perceeloppervlakte: ca. 111 m2

Indeling:

Begane grond:
entree, meterkast, kelderkast, toilet, lichte woonkamer met laminaatvloer, schuifpui aan de achterzijde en een erker aan de voorzijde, open keuken met inbouwapparatuur (afzuigkap, inbouwkoelkast en gaskookplaat), toegang tot serre in de achtertuin met vrijstaande houten schuur met elektra.

1e Verdieping:
overloop, grote slaapkamer aan de voorzijde, kleine slaapkamer aan de voorzijde, grote slaapkamer aan de achterzijde, badkamer met douche, wastafel, toilet.

2e Verdieping:
via vaste trap bereikbare zolder, overloop, grote zolderkamer voorzien van Velux dakraam, bergruimte achter de knieschotten, bergruimte bovenin, opstelling c.v.-ketel, opstelling wasmachine en droger.

Bijzonderheden:
– Aanvaarding in overleg;
– Authentieke details zoals paneeldeuren en glas-in-lood ramen;
– Vier slaapkamers, waarvan de zolderkamer voorzien is van één Velux dakramen;
– Achtertuin op het noorden met vrijstaande houten schuur;
– C.V.-ketel Intergas 2015;
– Energielabel E;
– Veel bergruimte;
– De woning is voorzien van isolatieglas.

Interesse in dit huis? Schakel direct uw eigen NVM-aankoopmakelaar in. Uw NVM-aankoopmakelaar komt op voor úw belang en bespaart u tijd, geld en zorgen. Adressen van collega NVM-aankoopmakelaars vindt u op Funda.

Toon meer Toon minder

Kenmerken

  • Koopprijs € 369.000,- kosten koper
  • Status Verkocht onder voorbehoud
  • Bouwjaar 1935
  • Aanvaarding In overleg
  • Servicekosten € 0,-
  • Soort bouw Bestaande bouw
  • Bouwjaar 1935
  • Perceeloppervlakte ca. 111 m2
  • Hoofdtuin Achtertuin
  • Oppervlakte hoofdtuin 38 m2
  • Ligging hoofdtuin Noord
  • Kwaliteit tuin Fraai aangelegd
  • Parkeerfaciliteiten Openbaar parkeren
  • Schuur / berging Vrijstaand hout
  • Voorzieningen Voorzien van elektra
  • Energielabel E
  • Isolatie Dakisolatie, vloerisolatie, dubbel glas
  • Verwarming Cv ketel
  • Warm water Cv ketel
  • C.V.-ketel type Gas
  • C.V.-ketel bouwjaar 2015
  • Energie einddatum 2035-10-01
  • Voorzieningen Tv kabel, schuifpui, dakraam, natuurlijke ventilatie
  • Onderhoud binnen Goed
  • Onderhoud buiten Goed
  • Permanente bewoning Ja
  • Huidig gebruik Woonruimte
Toon meer Toon minder

Een kindvriendelijke buurt in een zeer gewilde wijk.
Een prachtige woning voor een middelgroot gezin.

Plattegronden

Media

Vragen over deze woning?

Mirjam helpt je graag!

Over ons

De makelaar voor jouw woongeluk

Als u uw huis gaat verkopen dan wilt u toch de absolute zekerheid dat u een makelaar heeft die zich met hart en ziel voor u inzet? Een makelaar die uw wijk en de regio kent als geen ander? Van Gulik Makelaars Beverwijk doet dit al 40 jaar met resultaat!

Jouw verkoop- en aankoopmakelaar in de IJmond.

Welke cookies zijn er?

We maken onderscheid tussen verschillende soorten cookies

Functionele cookies

We gebruiken zowel sessie-cookies (vervallen wanneer de webbrowser wordt afgesloten) en blijvende cookies (blijven op je apparaat tenzij deze worden gewist). Hieronder volgt een overzicht van de cookies waar we gebruik van maken.

Analytische cookies

We gebruiken zowel sessie-cookies (vervallen wanneer de webbrowser wordt afgesloten) en blijvende cookies (blijven op je apparaat tenzij deze worden gewist). Hieronder volgt een overzicht van de cookies waar we gebruik van maken.

Tracking cookies

We gebruiken zowel sessie-cookies (vervallen wanneer de webbrowser wordt afgesloten) en blijvende cookies (blijven op je apparaat tenzij deze worden gewist). Hieronder volgt een overzicht van de cookies waar we gebruik van maken.

Social media plug-in cookies

We gebruiken zowel sessie-cookies (vervallen wanneer de webbrowser wordt afgesloten) en blijvende cookies (blijven op je apparaat tenzij deze worden gewist). Hieronder volgt een overzicht van de cookies waar we gebruik van maken.