Omschrijving
Sfeervolle en ruime tussenwoning op rustige kindvriendelijke locatie!
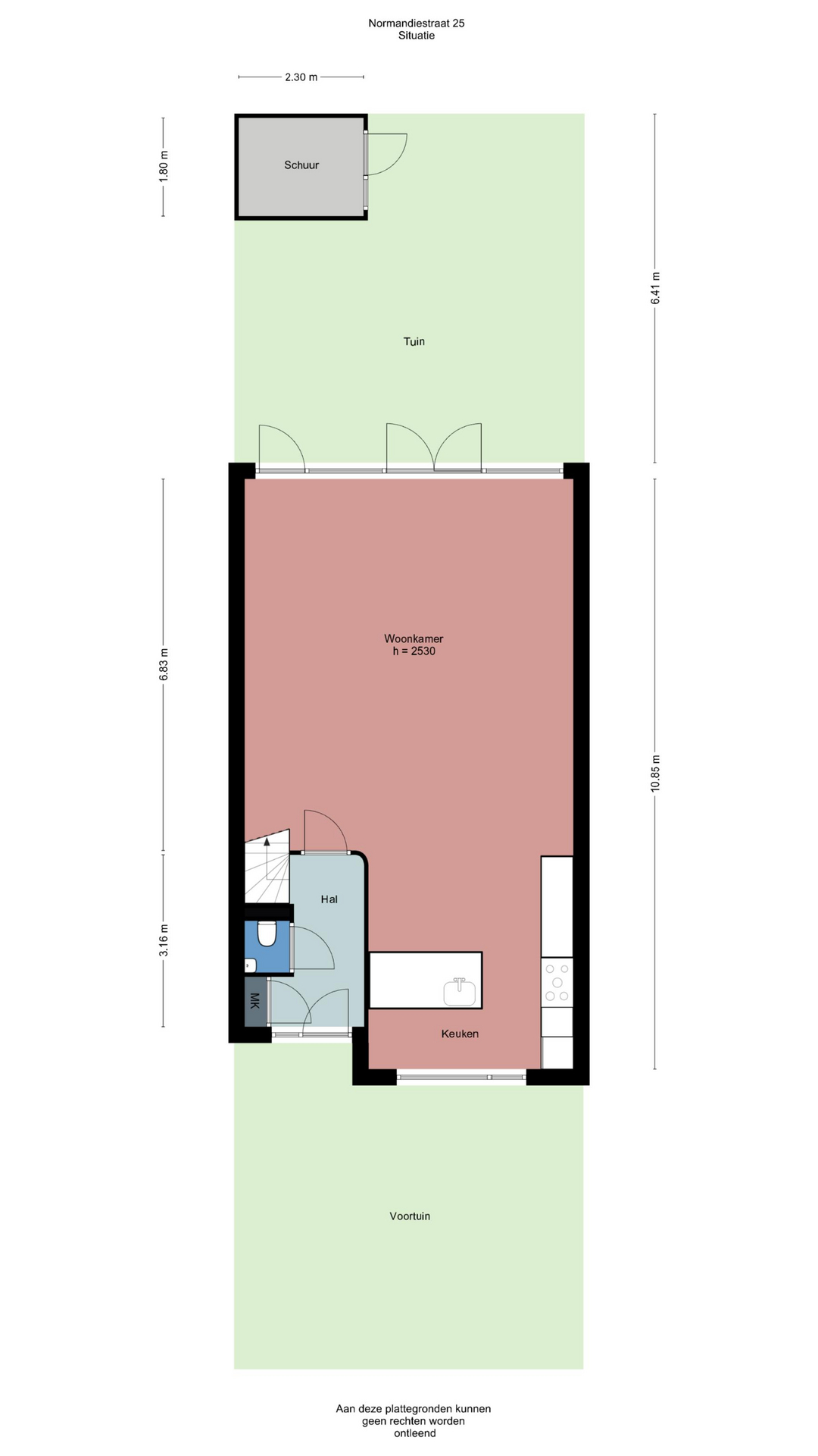
Deze ruime tussenwoning is uitgebouwd aan de achterzijde waardoor er een verrassend royale en sfeervolle woonkamer is ontstaan. De woonkamer is voorzien van een massief houten vloer en een open keuken aan de voorzijde van de woning. De open keuken in landelijke stijl is een droom voor elke kookliefhebber: uitgerust met een royaal spoeleiland, een stoer aanrechtblad van Belgisch hardsteen en hoogwaardige inbouwapparatuur. De woonkamer is voorzien van openslaande deuren naar de zonnige achtertuin gelegen op het zuidwesten. Op de eerste verdieping zijn er drie ruime slaapkamers, waaronder één met een schuin dak en een dakkapel aan de voorzijde. Alle kamers zijn voorzien van kunststof kozijnen en netjes afgewerkt. De badkamer is van alle gemakken voorzien, inclusief een 2e toilet. Via de vaste trap bereik je de verrassend ruime zolderverdieping. Hier vind je de aansluitingen voor wasmachine en cv-installatie, de omvormer van de 9 zonnepanelen én veel bergruimte. De grote zolderkamer biedt tal van gebruiksmogelijkheden, van werkruimte tot logeerkamer. Gelegen op een steenworpafstand van winkelcentrum Daalmeer en dichtbij station Alkmaar Noord! Het historische centrum van Alkmaar is per fiets goed te bereiken. Ook zijn er diverse uitvalswegen richting Schagen, Haarlem en Amsterdam.
Kortom: Een sfeervol en royaal woonhuis in een rustige, kindvriendelijke buurt van Alkmaar. Deze verrassend ruime woning combineert charme met hedendaags wooncomfort en is ideaal voor gezinnen die nét dat beetje extra zoeken.
Bouwjaar: ca. 1984
Inhoud: ca. 421 m3
Woonoppervlakte: ca. 107 m2
Perceelsoppervlakte: ca. 154 m2
Indeling:
Begane grond:
entree, hal, moderne meterkast met voldoende groepen, zwevend toilet met fonteintje en bidet, woonkamer met eikenhouten vloer, wanden glad gestuukt, uitbouw over de gehele breedte, openslaande deuren en een aparte deur naar de zonnige achtertuin met stenen schuur en achterom, open keuken met spoeleiland, aanrechtblad Belgisch hardsteen en inbouwapparatuur (o.a. vaatwasser, Boretti fornuis met 5 pitten, bakplaat en dubbele oven, koel vriescombinatie), deels gestuukt plafond met Amsterdamse plint, deels gespoten, houten kozijnen
1e Verdieping:
overloop, 3 ruime slaapkamers waarvan één met schuin dak en dakkapel (voor), kunststof kozijnen, vloerbedekking, betonplaten plafond en structuurverf (heel licht) muren, badkamer met houten dekvloer (net als op de boot), zwevend toilet, wastafel met meubel, inloopdouche, kunststof plafond met spotjes
2e Verdieping:
via vaste trap bereikbare zolder, wasmachine aansluiting, omvormer zonnepanelen, cv aansluiting, berging, ruime zolderkamer, niet genoeg daglicht, maar heel gemakkelijk aan te brengen door middel van nieuw dakraam
Bijzonderheden:
– riante uitgebouwde woonkamer met openslaande deuren;
– luxe open keuken met Boretti fornuis en Belgisch hardstenen blad;
– fraai afgewerkte badkamer met maritieme details;
– drie slaapkamers en royale zolderkamer;
– 9 zonnepanelen: energiezuinig én duurzaam;
– zonnige achtertuin met achterom en stenen schuur;
– gelegen in een rustige, geliefde woonwijk van Alkmaar.
Interesse in dit huis? Schakel direct uw eigen NVM-aankoopmakelaar in. Uw NVM-aankoopmakelaar komt op voor úw belang en bespaart u tijd, geld en zorgen. Adressen van collega NVM-aankoopmakelaars vindt u op Funda.
Kenmerken
- Koopprijs € 475.000,- kosten koper
- Status Beschikbaar
- Bouwjaar 1984
- Aanvaarding In overleg
- Servicekosten € 0,-
- Soort bouw Bestaande bouw
- Bouwjaar 1984
- Perceeloppervlakte ca. 154 m2
- Hoofdtuin Achtertuin
- Oppervlakte hoofdtuin 57 m2
- Ligging hoofdtuin Zuidwest
- Kwaliteit tuin Normaal
- Parkeerfaciliteiten Openbaar parkeren
- Schuur / berging Vrijstaand steen
- Aantal schuren / bergingen 1
- Voorzieningen Voorzien van elektra
- Energielabel A
- Isolatie Dakisolatie, muurisolatie, vloerisolatie, dubbel glas, hr glas
- Verwarming Cv ketel
- Warm water Cv ketel
- C.V.-ketel type Gas
- C.V.-ketel bouwjaar 2014
- Energie einddatum 2035-07-02
- Voorzieningen Tv kabel, buitenzonwering, dakraam, zonnepanelen, natuurlijke ventilatie
- Onderhoud binnen Goed
- Onderhoud buiten Goed
- Bijzonderheden Gestoffeerd
- Permanente bewoning Ja
- Huidig gebruik Woonruimte

Een kindvriendelijke buurt in een zeer gewilde wijk.
Een prachtige woning voor een middelgroot gezin.
Woning in beeld
Plattegronden
De makelaar voor jouw woongeluk
Als u uw huis gaat verkopen dan wilt u toch de absolute zekerheid dat u een makelaar heeft die zich met hart en ziel voor u inzet? Een makelaar die uw wijk en de regio kent als geen ander? Van Gulik Makelaars Beverwijk doet dit al 40 jaar met resultaat!