Omschrijving
Bent u op zoek naar ruimte, rust en talloze mogelijkheden?
Bouw uw droomwoning aan de Luttik Cie 50 in Heemskerk!
Droomt u ervan om uw eigen huis te realiseren? Dat kan nu! Aan de Luttik Cie 50 in Heemskerk ligt een royale bouwkavel waar u op korte termijn kunt starten met de bouw van uw droomwoning.
Op dit perceel van 410 m² staat momenteel een twee-onder-een-kapwoning met schuur, maar de echte waarde zit in de mogelijkheden voor nieuwbouw. Hier krijgt u de kans om uw eigen woonideeën werkelijkheid te laten worden – of dat nu een moderne vrijstaande woning is of een stijlvolle twee-onder-een-kapwoning.
De locatie is ideaal: gelegen aan de rand van Heemskerk, omringd door groen, prachtige bollenvelden en rust, maar toch dichtbij alle voorzieningen. Het Heemskerkerduin biedt een prachtige natuurlijke omgeving waar u elke dag van kunt genieten.
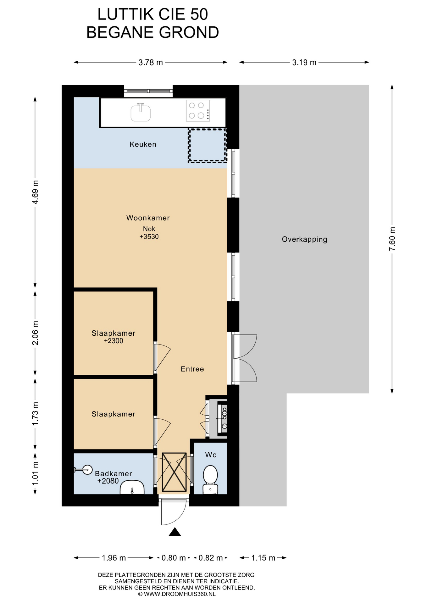
De huidige woning vraagt om een grondige renovatie, maar biedt u daarmee ook de kans om alles geheel naar uw eigen smaak aan te passen. Achterop het perceel staat bovendien een praktische schuur met een compacte woonunit met geïsoleerde wanden, inclusief keuken, badkamer, toilet en twee slaapkamers. Wellicht mogelijk als zomerhuis of B & B.
Ook treft u een sfeervolle veranda met bar. Een heerlijke, beschutte plek om te genieten van de zon, te ontspannen met een goed boek of om samen met vrienden en familie te barbecueën.
Er is een heerlijke grote tuin, waar je kan ontspannen en kan zonnen.
Kortom: een unieke kans om vrij en comfortabel te wonen op een schitterende plek in Heemskerk!
De ligging combineert rust en ruimte met optimale bereikbaarheid: het gezellige centrum van Heemskerk is vlakbij en bovendien zijn strand en duinen lopend of per fiets bereikbaar, en voor watersportliefhebbers is het Uitgeestermeer per fiets goed te doen. Het NS-station Heemskerk is eveneens dichtbij, en via de uitvalswegen bent u zo in Alkmaar, Haarlem, de Zaanstreek of Amsterdam (Schiphol).
U profiteert hier van de perfecte combinatie van landelijk wonen en optimale bereikbaarheid.
Kortom: een buitengewone kans om zelf een landelijke woning te realiseren op een prachtige plek!
Bent u klaar om deze woning een eigen karakter te geven? Maak een afspraak voor een bezichtiging en ervaar zelf de mogelijkheden!
Kenmerken
- Koopprijs € 450.000,- kosten koper
- Status Beschikbaar
- Bouwjaar 1924
- Aanvaarding In overleg
- Servicekosten € 0,-
- Soort bouw Bestaande bouw
- Bouwjaar 1924
- Perceeloppervlakte ca. 410 m2
- Hoofdtuin Achtertuin
- Oppervlakte hoofdtuin 384 m2
- Ligging hoofdtuin Oost
- Kwaliteit tuin Normaal
- Parkeerfaciliteiten Openbaar parkeren, op eigen terrein
- Schuur / berging Vrijstaand hout
- Aantal schuren / bergingen 2
- Voorzieningen Voorzien van elektra
- Energielabel G
- Isolatie Geen isolatie
- Verwarming Elektrische verwarming
- Warm water Elektrische boiler eigendom
- Energie einddatum 2035-09-08
- Onderhoud binnen Slecht
- Onderhoud buiten Slecht
- Bijzonderheden Kluswoning
- Permanente bewoning Ja
- Huidig gebruik Woonruimte

Een kindvriendelijke buurt in een zeer gewilde wijk.
Een prachtige woning voor een middelgroot gezin.
Woning in beeld
Plattegronden
De makelaar voor jouw woongeluk
Als u uw huis gaat verkopen dan wilt u toch de absolute zekerheid dat u een makelaar heeft die zich met hart en ziel voor u inzet? Een makelaar die uw wijk en de regio kent als geen ander? Van Gulik Makelaars Beverwijk doet dit al 40 jaar met resultaat!