Omschrijving
Licht en royaal 4-kamer hoekappartement met panoramisch uitzicht
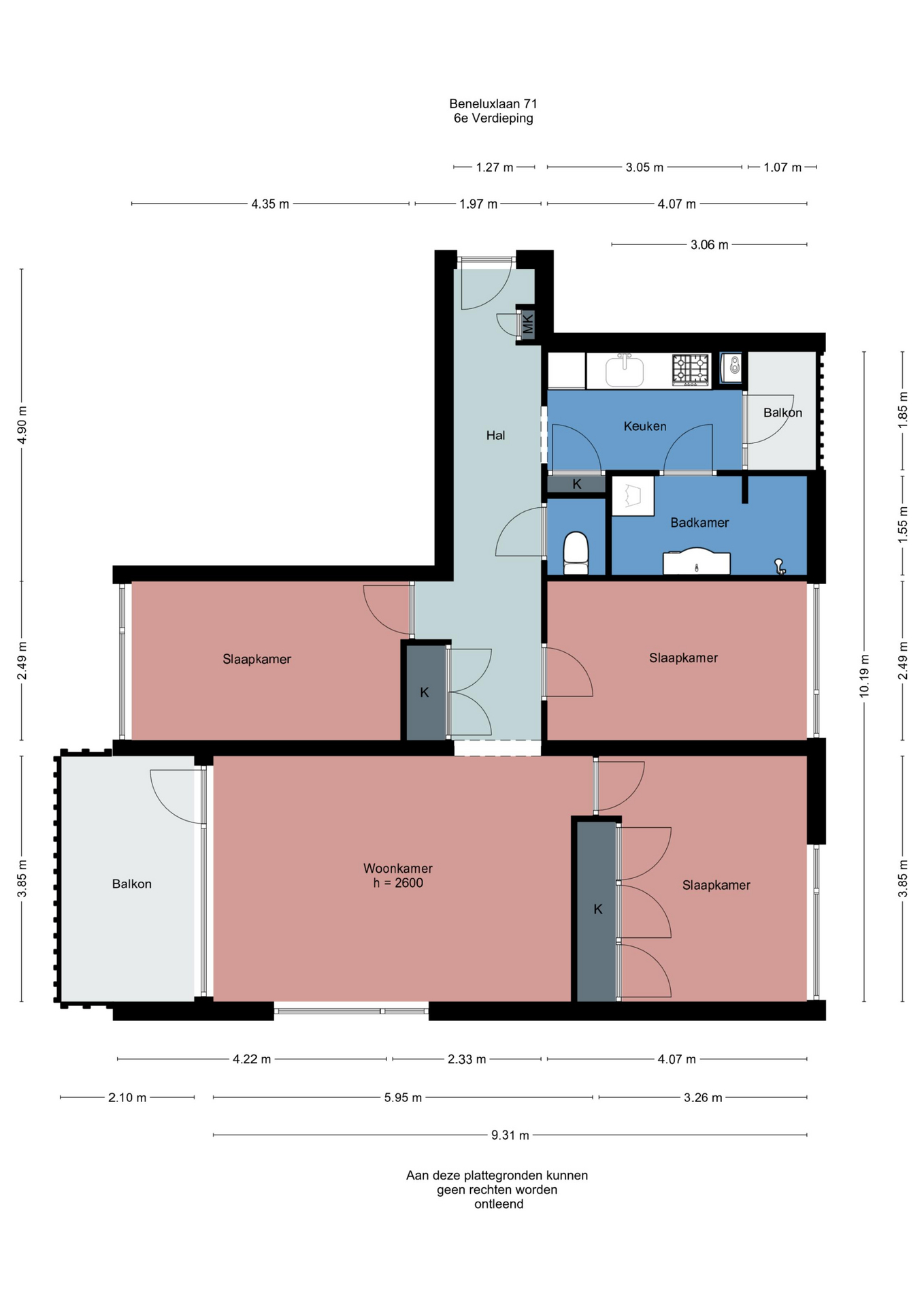
Gelegen op de zesde verdieping van een goed onderhouden complex aan de Beneluxlaan in Beverwijk, biedt dit smaakvol gemoderniseerde appartement van circa 84 m² woonoppervlak een zeldzame combinatie van ruimte, comfort en uitzicht. Met een hoekligging en grote raampartijen geniet u van een overvloed aan natuurlijk licht en een prachtig weids uitzicht.
Deze woning onderscheidt zich met drie volwaardige slaapkamers, die naar eigen wens kunnen worden ingericht als slaap-, werk- of hobbyruimte. De woonkamer valt direct op door de grote raampartijen die zorgen voor een overvloed aan natuurlijk licht en een gevoel van ruimte: een perfecte plek om tot rust te komen of gezellig samen te zijn. Vanuit de woonkamer heeft u directe toegang tot het grotere balkon op het zonnige zuidwesten, een zeldzaamheid met de ideale ligging om volop van het middag- en avondzonlicht te genieten.
De keuken en badkamer zijn praktisch en functioneel, met een mogelijkheid voor de koper om hier eigen stijl en wensen te realiseren. Vanuit de keuken heeft u toegang tot een tweede, kleiner balkon op het noordoosten. Ook biedt het appartement een ruime berging (6 m²) direct onder het complex en uitstekende parkeergelegenheid, wat het wooncomfort compleet maakt.
De ligging is ideaal. Binnen handbereik vindt u winkels, supermarkten, sportfaciliteiten en het openbaar vervoer met bus- en treinverbindingen dichtbij. Snelle uitvalswegen richting Haarlem, Alkmaar en Amsterdam zorgen voor optimale verbondenheid.
Benieuwd naar dit fijne appartement? Maak snel een afspraak voor een bezichtiging en ontdek zelf het comfort, het licht en het uitzicht dat deze woning te bieden heeft!
Plan snel een bezichtiging en ontdek dit prachtige appartement zelf. Ervaar het lichte, ruime en comfortabele wonen met een uitzicht dat rust en inspiratie brengt. Uw nieuwe thuis wacht op u aan de Beneluxlaan 71.
Bouwjaar: 1966
Woonoppervlak: ca. 84 m2
Gebouw gebonden buitenruimte: ca. 10 m2
Externe bergruimte: 6 m2
Inhoud: ca. 276 m3
Indeling:
Begane grond: entree, hal, lift.
Zesde verdieping: entree, ruime hal met meterkast en inbouwkasten, dichte keuken met voorraadkast en opstelling c.v.-combi-ketel (2018), toegang tot klein balkon op het Noordoosten, badkamer voorzien van douche, wastafel en wasmachine aansluiting, drie slaapkamers, waarvan één slaapkamer met inbouwkasten, lichte woonkamer met toegang tot groot en zonnig balkon op het Zuidwesten.
Pluspunten samengevat:
• Circa 84 m² woonoppervlak met 4 multifunctionele kamers
• Twee balkons (groot zuidwesten en klein noordoosten) met prachtig uitzicht
• Hoekappartement met extra ramen en veel lichtinval
• De woonkamer, gang en slaapkamers zijn in 2023 volledig vernieuwd: de wanden en plafonds zijn egaal gestuukt, drie radiatoren en de elektra zijn vervangen en er is een nieuwe laminaatvloer gelegd
• Functionele keuken en badkamer, klaar om naar eigen wens te renoveren
• Ruime (6 m²) berging onder het complex
• Uitstekende parkeergelegenheid vlakbij
• Actieve en gezonde VvE
• Lift aanwezig, met extra voorzieningen voor optimale toegankelijkheid
• Energielabel E (mogelijkheid tot verbetering)
• Grotendeels dubbel glas
• Centrale en gewilde locatie met alle voorzieningen dichtbij
• Servicekosten €200 euro p.m. incl. drinkwater, cv-onderhoudscontract en glasverzekering
Interesse in dit huis? Schakel direct uw eigen NVM-aankoopmakelaar in. Uw NVM-aankoopmakelaar komt op voor úw belang en bespaart u tijd, geld en zorgen. Adressen van collega NVM-aankoopmakelaars vindt u op Funda.
Kenmerken
- Koopprijs € 339.000,- kosten koper
- Status Beschikbaar
- Bouwjaar 1966
- Aanvaarding In overleg
- Servicekosten € 0,-
- Soort bouw Bestaande bouw
- Bouwjaar 1966
- Parkeerfaciliteiten Openbaar parkeren
- Schuur / berging Box
- Energielabel E
- Isolatie Gedeeltelijk dubbel glas
- Verwarming Cv ketel
- Warm water Cv ketel
- C.V.-ketel type Gas
- C.V.-ketel bouwjaar 2018
- Energie einddatum 2035-08-27
- Voorzieningen Tv kabel, lift
- Onderhoud binnen Goed
- Onderhoud buiten Goed
- Bijzonderheden Toegankelijk voor ouderen, toegankelijk voor minder validen
- Permanente bewoning Ja
- Huidig gebruik Woonruimte

Een kindvriendelijke buurt in een zeer gewilde wijk.
Een prachtige woning voor een middelgroot gezin.
Woning in beeld
Plattegronden
De makelaar voor jouw woongeluk
Als u uw huis gaat verkopen dan wilt u toch de absolute zekerheid dat u een makelaar heeft die zich met hart en ziel voor u inzet? Een makelaar die uw wijk en de regio kent als geen ander? Van Gulik Makelaars Beverwijk doet dit al 40 jaar met resultaat!